Retour à la liste

HEBERGEMENT MESSIRE WALERAN

Route du Palogne, 6
4190
VIEUXVILLE
Liège
 -
Belgique

Personne de contact

Veronique GOBERT
Langue : Français
veronique@palogne.be

Tarif

Prix spécial pour les mouvements de jeunesse : pour un weekend (du vendredi 18h au dimanche 16h) : 990 euros (charges incluses) - pour 10 jours : 3.650 euros - caution de 600 euros à verser à la remise des clés.
Signaler un problème

Description

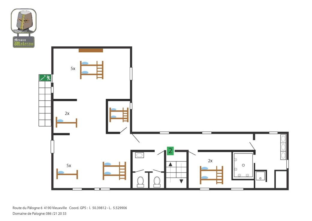
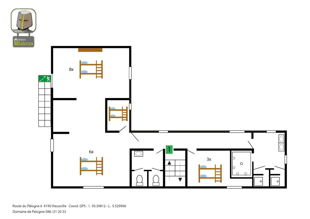
Bâtiment de 60 lits. Une cuisine équipée + vaisselle. Un réfectoir. Deux étages de dortoirs

Capacité

    60
    personnes

Équipement

  • Cuisine équipée
  • Douche(s)
  • Lits

Disponibilités

Indisponible

Signaler un problème

Fermer la modale