Retour à la liste

Local de l'Unité scoute St Nicolas - 57ème BW

Rue Ernest Deltenre, 27
1495
Sart-Dames-Avelines
Brabant Wallon
 -
Belgique

Personne de contact

Philippe François
Langue : Anglais, Français
location57bw@gmail.com

Tarif

100€ par nuit (hors charges) - voir détails onglet <caractéristiques>
Signaler un problème

Description

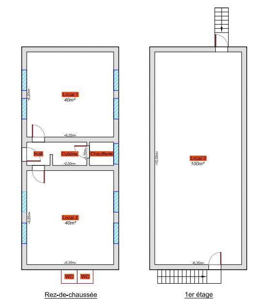
A. TERRAIN ET BÂTIMENT

Le local des scouts de Sart-Dames-Avelines se compose d'un bâtiment principal assorti d'une cour de jeux en béton (450m²) et de deux jardins (200m² et 550m²).

Au rez-de-chaussée, deux locaux de 40m² chacun se font face, disposés de part et d'autre du hall d'entrée. D'ordinaire, l'un est utilisé comme intendance et dortoir des chefs tandis que l'autre l'est comme réfectoire. Des tables et des bancs sont à disposition du preneur en grand nombre.

Une petite cuisine (moins de 5m²) donnant sur le hall d'entrée est également mise à disposition. Elle comporte une cuisinière électrique d'appoint, deux armoires, un évier de cuisine et un petit chauffe-eau.

A l'extérieur, deux toilettes (avec éclairage) sous cabanon sont adossées au bâtiment. Une prise d'eau extérieure a également été installée.

A l'étage se trouve un troisième local de 100m² entièrement carrelé. Il est habituellement utilisé comme dortoir des animés et, parfois, comme lieu d'activités intérieures.

L'ensemble du bâtiment est entièrement isolé (du froid) et chauffé par chauffage central (mazout).

Le local ne dispose pas de douches. Pour les locations de juillet et d'août, le groupe de locataires se voit offrir la possibilité d'utiliser deux vestiaires collectifs du Complexe sportif communal comportant chacun 5 douches d'eau chaude. Leur utilisation est limitée à une douche par personne et par jour. Le Complexe sportif se situe à environ 600m du local. L'accès aux douches n'est possible qu'aux heures habituelles d'ouverture du Complexe.

B. ALENTOURS

Situé en plein centre du village, le terrain est entièrement clos et se situe à proximité d'un vaste réseau de sentiers.

De nombreux commerces et services sont situés à proximité de l'endroit, notamment: boulangerie (3,5 km), boucherie (3,5km), friterie (2,5km), station-essence (3,5km), distributeur automatique de billets (3,5km) et plusieurs supermarchés (Intermarché à 2,5km ; Colruyt à 6,5km ; Proxy Delhaize à 5km).

L'entité compte de nombreux médecins, la pharmacie la plus proche se situe à 750m du local et l'hôpital St Pierre d'Ottignies est distant d'une quinzaine de kilomètres.

Autres points d'intérêt :

- paroisse catholique (+/- 100m.) ;
- grande prairie (+/- 150 m., non-disponible d'avril à juin, disponibilité sous réserve de fauche en juillet et en août) ;
- bois de 5 ha (+/- 750 m.) ;
- plaine communale des sports (+/- 700 m.) ;
- ruines de l'Abbaye de Villers (+/- 4,2 km).

C. DISPONIBILITÉS

Le bâtiment étant essentiellement affecté à l'unité scoute locale, celui-ci n'est disponible à la location qu'aux périodes suivantes:

- chaque troisième week-end du mois (quatrième week-end en septembre) ;
- durant l'ensemble des périodes de vacances scolaires telles que définies en Communauté Française ;
- durant les mois de juillet et août, les locations ne pouvant se faire durant cette période que par tranche de 10 ou 15 jours.

Attention: ce cantonnement ne peut être loué que par des mouvements de jeunesses appartenant à une fédération de scoutisme.

D. MODALITÉS DE LOCATION

1. Le calendrier des disponibilités étant régulièrement remis à jour, merci de vérifier d'abord si la période de location qui vous intéresse est toujours disponible (couleur verte).

2. Si tel est le cas, merci de contacter le préposé aux locations par courrier électronique à l'adresse location57bw@gmail.com (unique canal de communication). Les demandes sont traitées dès que possible et selon leur ordre de réception.

3. Dans l'attente d'une visite des lieux, une option peut être prise sur la période vous intéressant avec l'accord du préposé aux locations. Celle-ci ne peut jamais dépasser deux semaines.

4. Il n'est pas possible de procéder à la location du bâtiment plus d'un an avant la date ou période souhaitée.

E. PRIX DE LOCATION

Prix: 100 € par nuit.

Remarque 01 : le prix n'inclut pas les frais d'électricité, d'eau et de chauffage qui restent à charge du preneur.

Les charges sont portées en compte sur base de la consommation réelle du preneur et calculées de la façon suivante:

- électricité: 0,50 € par kWh ;
- chauffage: 4,00 € par unité d'utilisation ;
- eau: 5,50 € par m³.
- sacs poubelles communaux: 1,50 € pièce.

Remarque 02 : en juillet et en août, un supplément de 0.15 € par personne et par jour en cas d'utilisation des douches (eau chaude).

F. ACCESSIBILITÉ - EN BUS

1. Le local se situe à 250m de l'arrêt "Maison du Peuple", sur la ligne TEC 568 Nivelles / Marbais / Fleurus.

La ligne compte une vingtaine de bus par jour (dans chaque sens) en semaine et 8 (dans chaque sens) le samedi.

2. Le local se situe également à moins de 100m de l'arrêt "Place", sur la ligne TEC Jumet Madeleine / Frasnes-Lez-Gosselies.

La ligne compte 4 bus par jour (dans chaque sens), en semaine uniquement.

G. ACCESSIBILITÉ - EN TRAIN

Le local se situe à environ 3,6km de l'arrêt SNCB "Villers-la-Ville", sur la ligne 140 Ottignies <--> Tamines.

La ligne compte 1 train par heure dans chaque sens de circulation en semaine et 1 train toutes les deux heures dans chaque sens de circulation (alternance) le week-end. Elle se voit renforcée par l'ajout de trains supplémentaires aux heures de pointe.

H. ACCESSIBILITÉ - PAR LA ROUTE

Le local est situé au 27 de la rue Ernest Deltenre à 1495 Sart-Dames-Avelines.

Un itinéraire détaillé établi en fonction de votre provenance peut vous être transmis sur simple demande.

Capacité

    30
    personnes

Équipement

  • Cuisine équipée
  • Douche(s)
  • Prairie à disposition
  • Feu de camp autorisé

Disponibilités

Indisponible

Signaler un problème

Fermer la modale